1531 Olive Pond Place
Offered at: $1,649,000
MLS®: 10378117
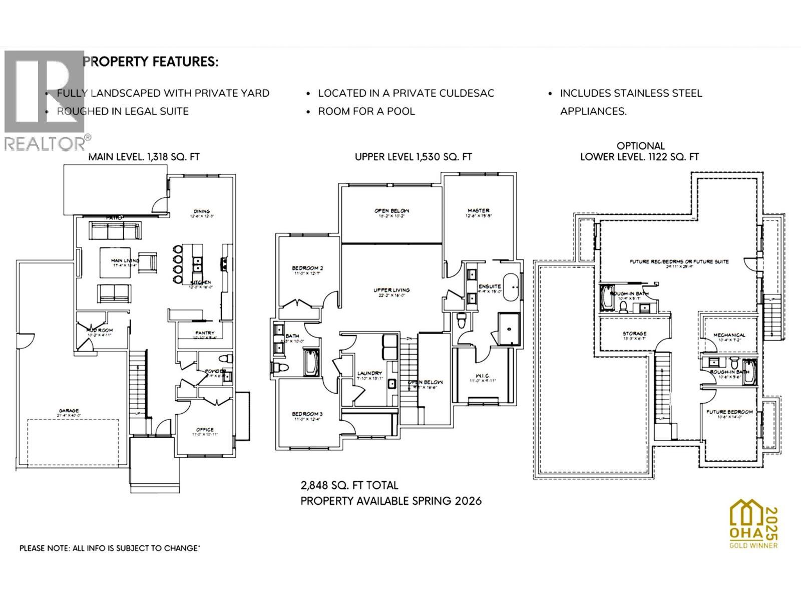
Welcome to this brand new 3,970 SqFt home in Hidden Hills, designed and constructed by AuthenTech Homes. A blend of timeless style and modern function within Kelowna’s premier Wilden community. The exterior makes an impressive first impression, the main level is complete with soaring high ceilings, a dedicated home office, and a beautiful kitchen featuring a walk in pantry and stainless steel appliances. The upper floor hosts three spacious bedrooms, a secondary upper living area, and a convenient laundry room. The primary suite is a retreat, complete with a walk-in closet and a luxurious ensuite. For added flexibility, the 1,122 square foot lower level comes fully roughed in for a legal suite or extra recreation space. Situated in a private cul-de-sac, this property features a triple car garage with tandem parking and a fully landscaped yard with ample room for a pool. Enjoy life steps away from serene trails, parks, and top rated schools. GST is applicable. (id:6769)
Quick Stats
Key Home Data
3
BATH(S)
3
BED(S)
2848
SQFT
YES
SHOWING AVAILABLE
Property Type:
Single Family Home Ownership:
Freehold
Payment Calculator
Calculate your monthly mortgage payment.
Mortgage Amount
$
Amortization
years
Payment Freq.
Interest Rate
%
Calculating...
All About the Details
See specific details below.
Neighbourhood Statistics
Get to know your neighbourhood.
