#109 1850 Shannon Lake Road
Offered at: $399,900
MLS®: 10378719
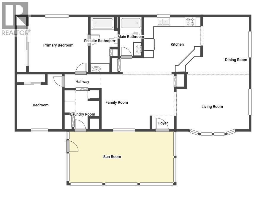
Welcome to this beautifully updated home in the desirable Shannon Lake community of Crystal Springs. This well-maintained home has seen numerous upgrades, offering comfort, style, and peace of mind for years to come. Major mechanical improvements include Poly-B plumbing removal and replacement with PEX, as was as the furnace (2015) and AC (2016). The home’s exterior has also been thoughtfully updated with a new roof (2024), new skirting (2023), and a new skylight (2024) that enhances natural light inside the home. Step inside to find new engineered hardwood flooring installed throughout most of the home in 2025, creating a modern and cohesive feel. The kitchen was refreshed in 2021 with updated countertops and a stylish backsplash, offering a functional and attractive space for cooking and entertaining. Enjoy outdoor living on the large front deck, now fully enclosed, providing additional versatile space that can be enjoyed in multiple seasons. With extensive updates already completed, this move-in-ready home offers excellent value and low-maintenance living in a welcoming neighbourhood close to Shannon Lake amenities, golf, parks, and shopping. Residents of Crystal Springs enjoy a welcoming, well-managed community with access to a clubhouse, guest suites, and beautifully landscaped grounds. (id:6769)
Quick Stats
Key Home Data
2
BATH(S)
2
BED(S)
1352
SQFT
YES
SHOWING AVAILABLE
Property Type:
Single Family Home Ownership:
Leasehold
Payment Calculator
Calculate your monthly mortgage payment.
Mortgage Amount
$
Amortization
years
Payment Freq.
Interest Rate
%
Calculating...
All About the Details
See specific details below.
Neighbourhood Statistics
Get to know your neighbourhood.
