375 Feathertop Way
Offered at: $1,750,000
MLS®: 10371376
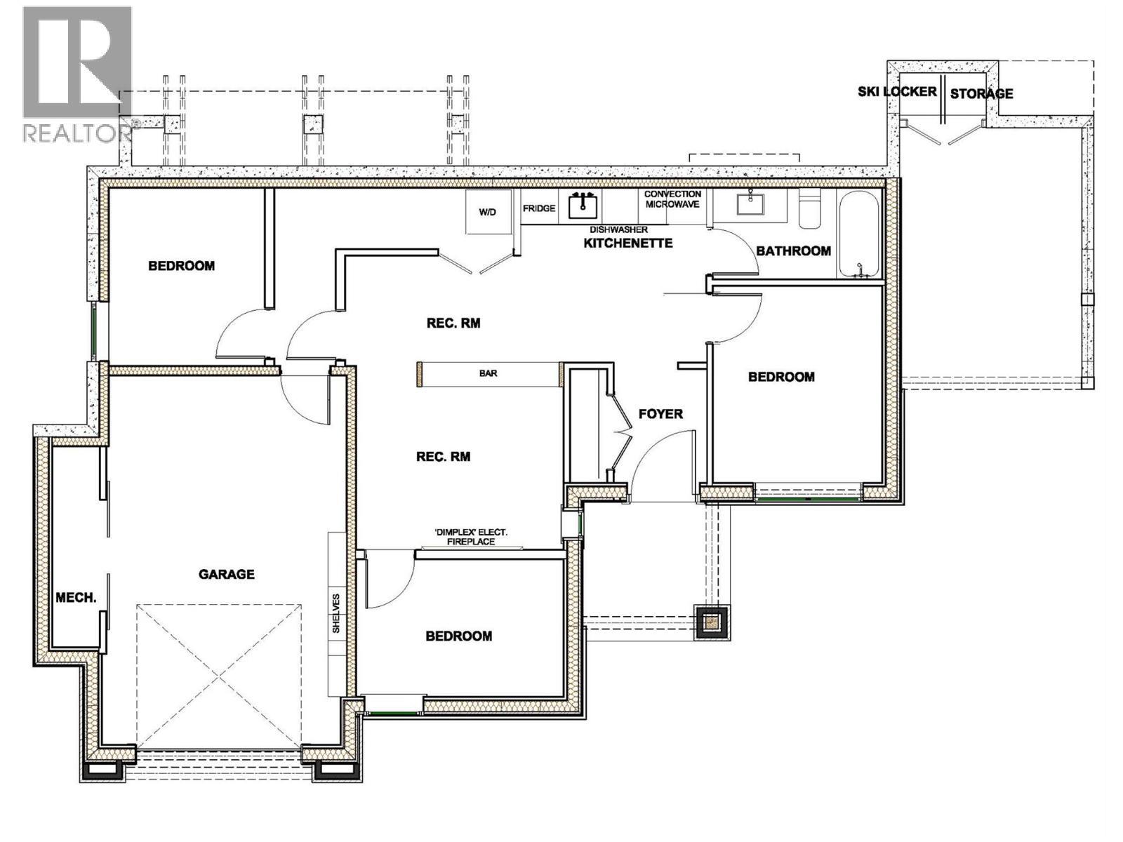
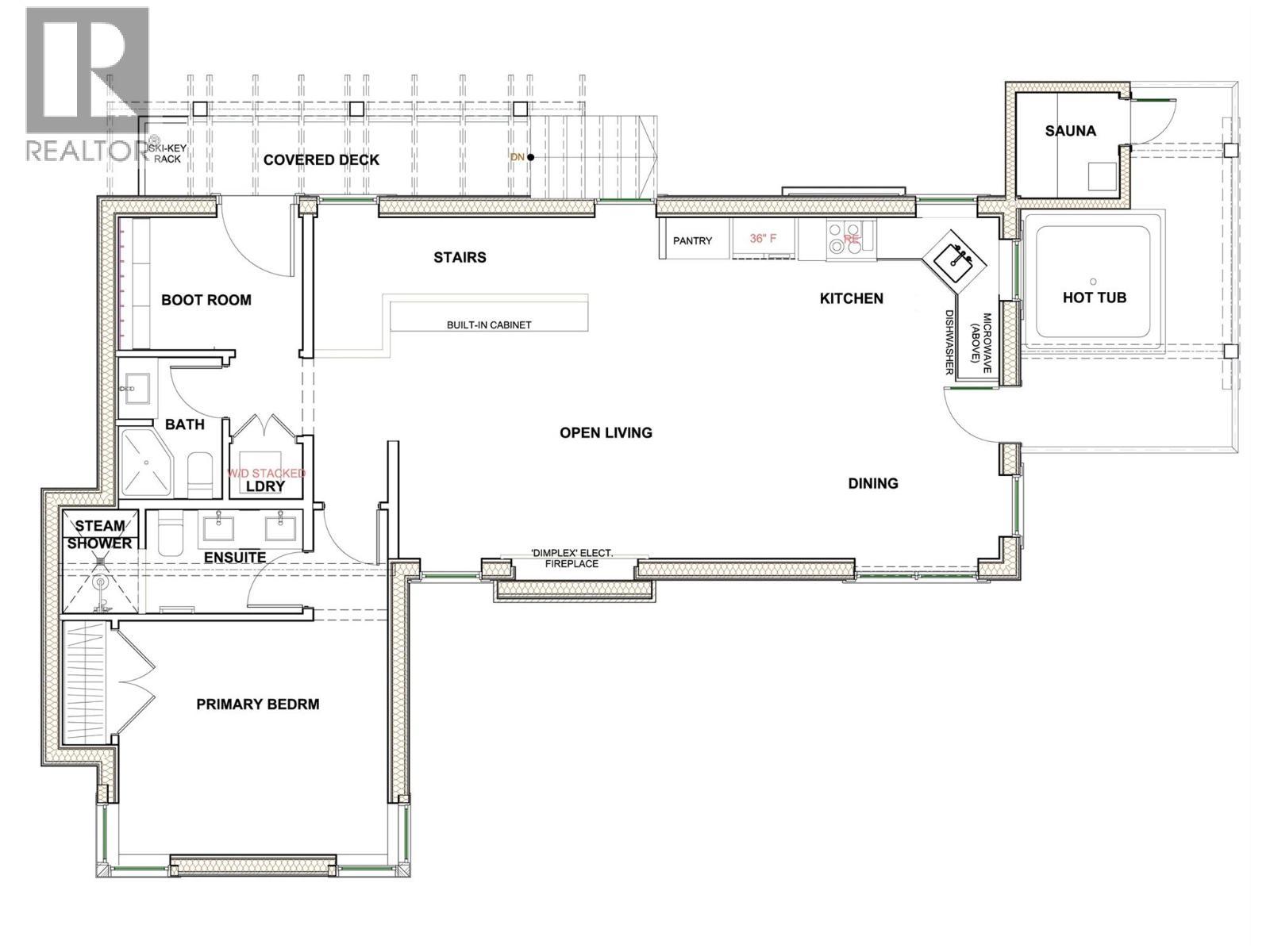
Welcome to 375 Feathertop Way located in the desirable Feathertop Estates. Enjoy true ski-in/ski-out convenience directly from your private ski locker, complete with a ski key rack, and quick access to The Bullet and Black Forest chairlifts. This home showcases 8” thick, heavily insulated exterior walls, triple-glazed European tilt-and-turn windows, and three-point latch European exterior doors, creating an airtight, energy-efficient envelope ideal for mountain conditions. Premium appliances throughout, including Bosch refrigerators and dishwashers on both upper and lower levels, a Bosch induction range in the upper kitchen, and a Bosch convection microwave in the lower kitchenette. The lower-level lock-off suite offers its own laundry and kitchenette, providing excellent flexibility for guests or potential rental income. Energy efficiency continues with LED lighting throughout, a Zehnder high-efficiency heat exchanger, and Dimplex electric baseboard and forced-air heating, each room equipped with individual remote-controlled thermostats. After a day on the slopes, relax by either electric fireplace or unwind in the spa-inspired amenities, including instant hot water at all sinks, an ensuite PRO-240 auto-flush steam generator, Jacuzzi J-345 hot tub with remote control, and a private sauna, also remotely controlled. This exceptional home is ideal for full-time living or a luxurious Big White retreat. (id:6769)
Quick Stats
Key Home Data
3
BATH(S)
4
BED(S)
1862
SQFT
YES
SHOWING AVAILABLE
Property Type:
Single Family Home Ownership:
Bare Land Condo/Strata
Payment Calculator
Calculate your monthly mortgage payment.
Mortgage Amount
$
Amortization
years
Payment Freq.
Interest Rate
%
Calculating...
All About the Details
See specific details below.
Neighbourhood Statistics
Get to know your neighbourhood.
