#202 & 203 5000 Silver Star Road
Offered at: $13
MLS®: 10367583
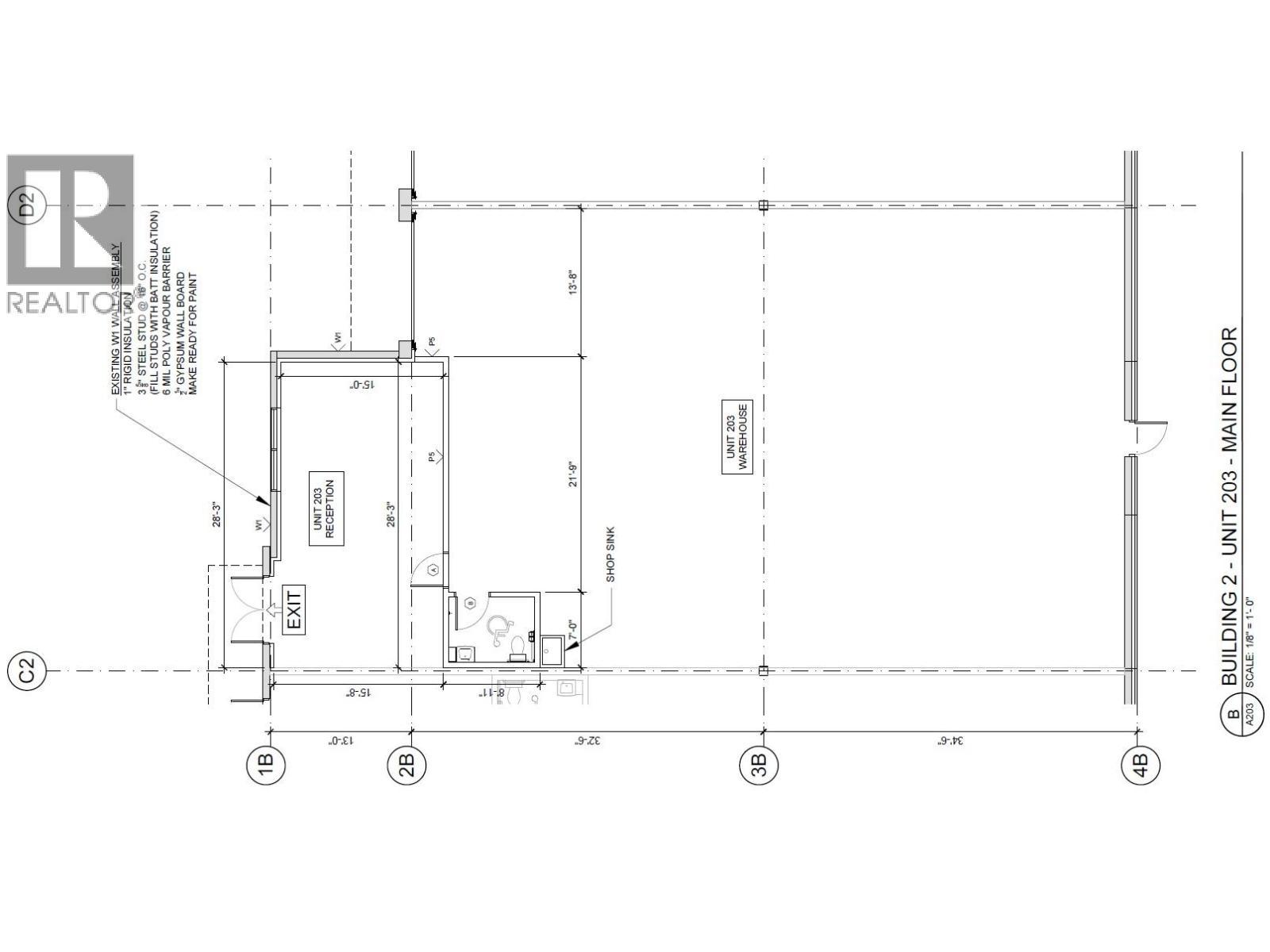
Unit 202/203 at Silver Star Gateway Business Park offers approximately 6,658 square feet of open service commercial warehouse space, with the potential to add a mezzanine or second floor. The unit features one exclusive grade-level loading door (14' x 12'), 24-foot clear ceiling height, motion-sensored LED lighting, and suspended gas-forced heating. This unit also includes a built-in office/showroom and one washroom, providing a functional layout for a variety of business needs. The property benefits from excellent exposure to Silver Star Road and offers ample onsite parking. Available for immediate occupancy. (id:6769)
Quick Stats
Key Home Data
0
BATH(S)
BED(S)
6658
SQFT
YES
SHOWING AVAILABLE
Property Type:
Industrial
Payment Calculator
Calculate your monthly mortgage payment.
Mortgage Amount
$
Amortization
years
Payment Freq.
Interest Rate
%
Calculating...
All About the Details
See specific details below.
Neighbourhood Statistics
Get to know your neighbourhood.
