#101 371 Alexander Street
Offered at: $398,000
MLS®: 10369254
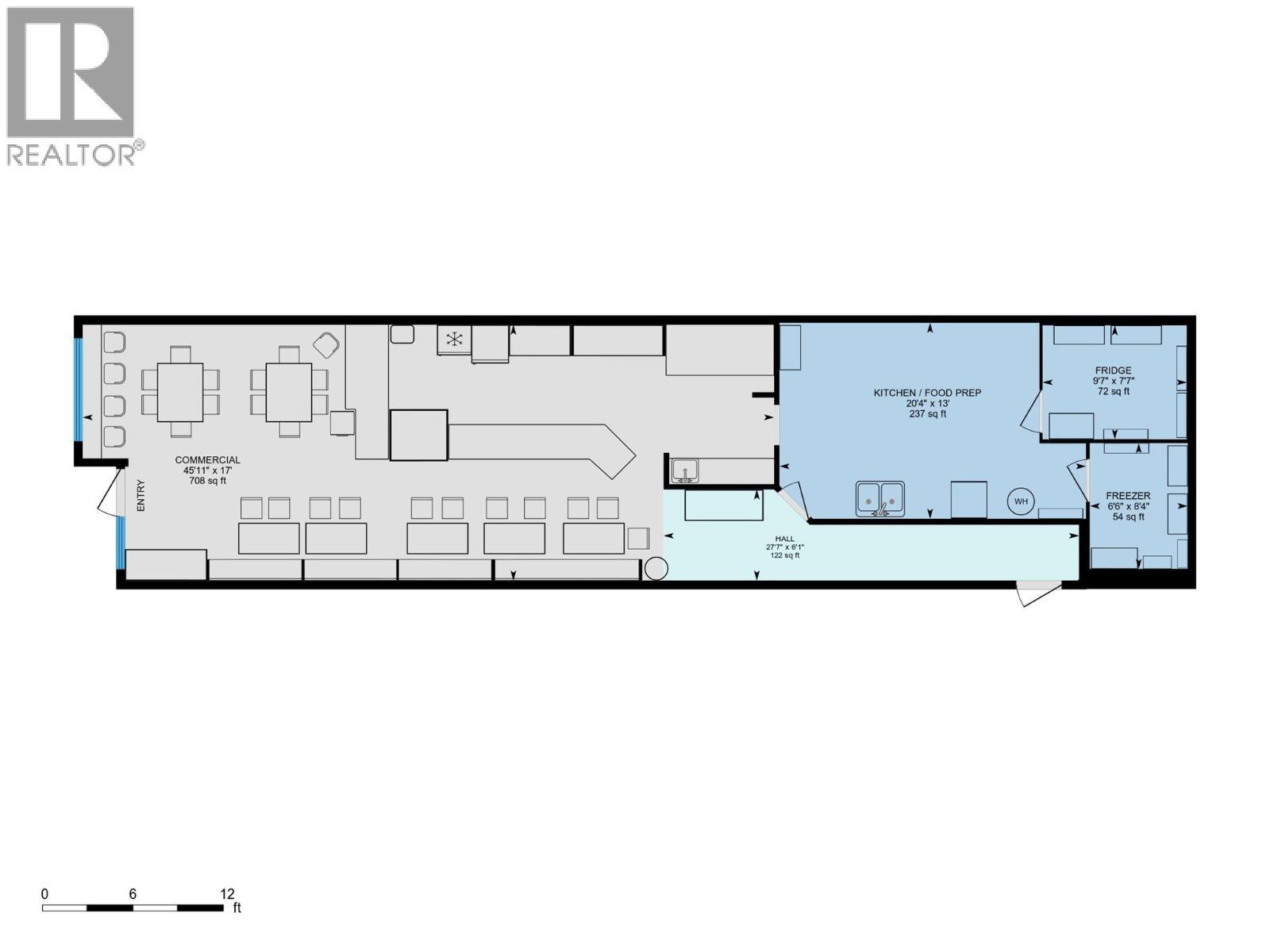
Prime location! This 1,387 square foot retail strata unit is situated in the heart of downtown. Formerly operated as a bistro/cafe, it features a walk-in cooler and freezer, coffee bar and food prep area, spacious seating/dining area, and kitchen space ready for your finishing touches. Access to shared washrooms and directly front Alexander Street allowing for prime exposure and foot traffic. Move in immediately and customize the kitchen for your food service business or adapt the space for a variety of other potential uses. A very rare opportunity to own your own retail space downtown Salmon Arm. Why rent? (id:6769)
Quick Stats
Key Home Data
0
BATH(S)
BED(S)
1387
SQFT
YES
SHOWING AVAILABLE
Property Type:
Retail
Payment Calculator
Calculate your monthly mortgage payment.
Mortgage Amount
$
Amortization
years
Payment Freq.
Interest Rate
%
Calculating...
All About the Details
See specific details below.
Neighbourhood Statistics
Get to know your neighbourhood.
